0

Oblíbené produkty:

0
  • Nemáte žádné oblíbené produkty.

+420 571 441 111(Po-Pa, 8-16:00 hod.)
Menu

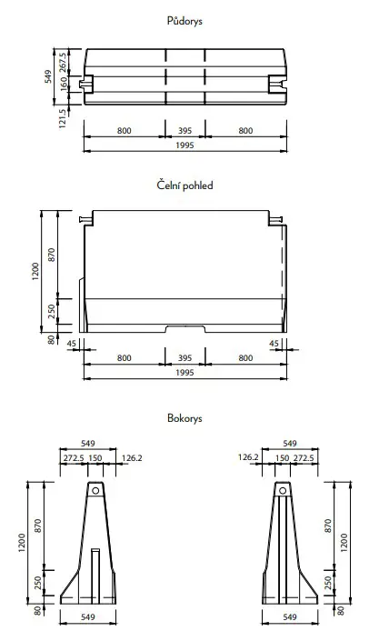
Oboustranné silniční betonové svodidlo TYP120, zkrácené – průběžný díl, 2000×695×1200 mm

Kód: CB-300049120OB
Hmotnost (kg) 1790
Materiál beton
Šířka (mm) 695
Výška (mm) 1200
Délka (mm) 2000

Popis produktu

Oboustranné betonové svodidlo TYP120, zkrácené – průběžný díl je vyroben z vysokopevnostního provzdušněného betonu pevnostní třídy C45/55 a vyhovuje požadavkům stupně agresivity prostředí XF4, XD3 dle normy ČSN EN 206-1.

Prvky jsou vyráběny v přírodní šedé barvě betonu nebo ve žluto-černé šrafované barvě.

Svodidla představují stálý, moderní a vysoce účinný prostředek korekce dráhy silničních vozidel a jejich možného proniknutí do protisměrných jízdních pruhů, nebo opuštění silničního tělesa. Lze instalovat jako trvalá nebo dočasná.

Silniční záchytný systém z betonových svodidel je tvořen jednotlivými železobetonovými prvky – prefabrikáty, které jsou mezi sebou kloubově spojeny do staticky únosné řetězovky s možností výrazného využití třecí-smykové síly v uložení prvku. Tato síla umožňuje snížení míry přetížení v havarujícím vozidle.

Svodidla jsou konstruována jako poddajná, která se při nárazu vozidla deformují, a to trvale. Jsou vyráběna v typové výšce 1200 mm a v provedení jednostranném nebo oboustranném. Betonová svodidla jsou Silničním záchytným systémem dle definice ČSN EN 1317-1 a TKP kap. 11. 

Silniční betonové svodidlo je v současné době z hlediska záchytné funkce nejkvalitnějším a nejúčinnějším systémem. Je zařazeno ve funkční třídě H4, což je nejvyšší úroveň zadržení dle ČSN EN 1317-2


Instalace | provedení:

  • Při umístění betonových zábran je nutno dodržet nařízení silničních úřadů, která se týkají příčného řezu silničních komunikací (na začátku a na konci každého ochranného řetězce je nutno počítat s rampovými prvky – krajní díl).
  • Plochou pro osazení je zpravidla povrch vozovky nebo chodník, příp. zpevněná parkoviště. Jako plochu pro osazení lze použít i nezpevněnou vrstvu nebo mechanicky stabilizovanou horní vrstvu.
  • Jednotlivé dílce se zpravidla osazují z nákladního vozu přímo na místo určení a to pomocí jeřábového ramene nebo VZV. Do dvou pro tento účel určených montážních kotev M16 se našroubují příslušné zvedací smyčky a prvek se pomocí jeřábu nadzvedne a usadí.
  • Po osazení na místo určení se pomocí spojek a šroubů, které jsou součástí dodání, jednotlivé prvky propojí.
  • Navíc lze na montážní kotvy připevnit držadla zábradlí. Na zvláštních zábradlích lze upevnit i reklamní tabule nebo podobné předměty.

Potřebujete poradit s výběrem?

Zavolejte nám

+420 571 441 111 (Po-Pá, 8-16:00 hod.)